【项目名称】青岛滨海国际中心
【项目地址】市北区瑞滨路66号
【项目展示中心地址】市北区瑞滨支路与瑞湖路交汇处
【项目基础信息】
总占地面积:约30.23万㎡
总建筑面积:约79万㎡

【项目规划】
项目地处RCEP战略跨国总部聚集区内,涵盖跨国总部滨海独栋办公、超高层双子塔楼、高端住宅、商业街区等多元复合业态,配套约6000㎡商业步行街含1500㎡农贸市场、九班制幼儿园、暖心养老院、约2500㎡铂金会所、约2050㎡社区体育中心、1.47公里滨海岸线等多元业态,承担带动片区发展的重任,打造青岛主城区又一张“新名片”,为青岛中心湾区建设面向世界的“国际会客厅”。
项目为了客户体验建造了青岛屈指可数的展示中心:包含近1万方室内展示中心(项目展示中心+办公体验区+融汇的产业投资中心+铂金会所),近10万方室外展示中心(1.47公里海岸线+1.6万方绿岛拾野来+3万方活动体验区)。

【主城低密纯粹住宅,重新定义圈层标准】
主城区内罕有低容积率、纯粹住宅模块,高质圈层聚首,营造静谧舒居
【首期地块信息】
总占地面积:约4.5万㎡
总建面:约13.3万㎡
容积率:2.13
绿化率:55%
交房标准:商品住宅精装
规划配置:地上地下双精装入户大堂、约2500㎡铂金会所、全龄儿童乐园、九班制幼儿园、暖心养老院


【在售产品】
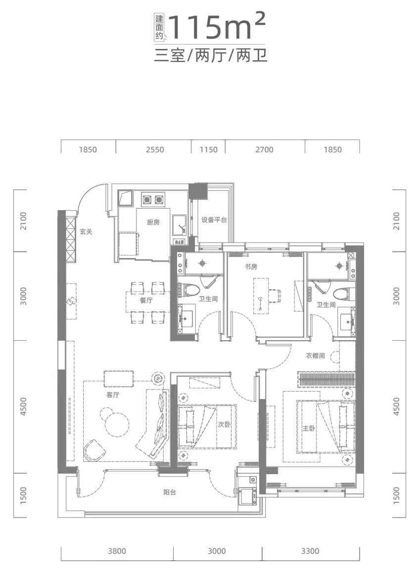
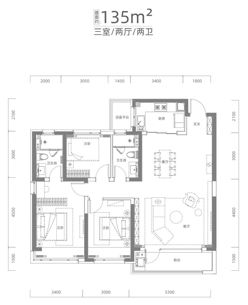
建面约115-178㎡精工美学

【独立礼序门厅】
独立入户玄关与收纳完美融合,尽显专属归家仪式感
【巨幕南向面宽】
约10.1m三南向面宽,敞阔采光面
【LDKG一体化】
LDK一体化布局,餐客厨阳台一线通达,亲密无间,生活动线畅达自如
【南向双联阳台】
约6.8m奢阔瞰景阳台,厚待宽境视野
【巨量收纳空间】
独立衣帽间+独有收纳间,丰沛收纳生活井然,擢升生活品质

【独立礼序门厅】
独立入户玄关与收纳完美融合,尽显专属归家仪式感
【巨幕南向面宽】
约11.7m三南向超大面宽,5.3m尺度客厅,IMAX级惊艳景观面,收揽更多阳光风景
【LDKG一体化】
约40㎡家庭社交空间,阔绰尺度圆满全家生活理想
【南向双联阳台】
约5.3m奢阔瞰景阳台,厚待宽境视野
【尊崇套房主卧】
南向飘窗,豪华卫浴、步入式衣帽间,际会优雅生活

【独立礼序门厅】
独立私密电梯厅与收纳完美融合,尽显专属归家仪式感
【奢阔开间尺度】
约13.5m南向三面宽,超广角采光,舒享生活明媚
【无界巨幕宽厅】
约6.9m大宽厅,宽以待客更显贵,极致观海视野
【LDKG一体化】
客厅、厨房、餐厅、阳台联通布局,缩短居家动线,打造家庭核心区
【双明卫设计】
卫生间干湿分离,雅洁清新,乐享优越生活
【多元化空间】
灵动3+1居,全能户型,满足当代家庭多样功能需求

【独立礼序门厅】
独立私密电梯厅与收纳完美融合,尽显专属归家仪式感
【奢阔开间尺度】
约15.7m南向四面宽,全南向精致居室,超广角采光,极致尊荣的生活空间
【超宽观景阳台】
约8.8m跑道式阳台,阔景视野,尽揽上层人生景致
【LDKG一体化】
客厅、厨房、餐厅、阳台联通布局,阔绰空间,生活起居自在穿行
【尊崇双套房】
套式主卧、次卧配备独立豪华卫浴,更显尊雅生活
【项目地址】市北区瑞滨路66号
【项目展示中心地址】市北区瑞滨支路与瑞湖路交汇处
【责任央企实力担当,稳健基因全方位保障】
中国中信集团有限公司(原中国国际信托投资公司)在美国《财富》杂志世界500强截止2024年排名第72位。
中信泰富是中信集团的全资子公司,也是中信集团的资本投资平台。作为中信泰富旗下主营板块之一,中信泰富地产始终秉承“精”和“特”的发展理念,探索着城市进化的源动力。
时至今日,中信泰富地产打造的上海陆家嘴滨江金融城、上海中信泰富大厦、上海信泰中心、武汉中信泰富滨江金融城、广州滨江上都、香港中环中信大厦、扬州锦园、济南尊等项目,均以精品和城市发展为发展目标,成为了各区域内的口碑标杆。
免责声明:本宣传画面仅为邀约邀请,内附所有资料,包括任何图片、插图、设计图、文字描述或其他资料,仅供参考或识别之用,不构成合同内容,具体内容以合同内容及政府最终审批为准。
[编辑:云彩]